相楽郡精華町光台6丁目
3,980万円
☆2025年6月リフォーム完了
☆敷地面積約86坪のゆとり
☆カースペース3台分確保(車種による)
☆ガーデニングや家庭菜園が楽しめるお庭
☆軽量鉄骨造の建物
☆前面道路は約6mで車の出し入れもスムーズ
─────────────────────
◇◆ ライフインフォメーション ◆◇
【スーパー】ラ・ムー精華店/徒歩約25分(約1800m)
【スーパー】いそかわイトーピア店/徒歩約27分(約1900m)
【コンビニ】セブン-イレブン精華町光台店/徒歩約10分(約750m)
【ドラッグストア】サンドラッグ精華町店/徒歩約25分(約1800m)
【病院】学研都市病院/徒歩約50分(約3700m)
【幼稚園・保育園】星の光幼稚園/徒歩約10分(約750m)
【公園】光台六丁目西公園/徒歩約2分(約160m)
(周辺施設の距離に関しては地図アプリを基に調査をしたものであり、実際にかかる時間と誤差がある場合があります。)
物件概要
| 所在地 | 相楽郡精華町光台 6丁目 | 価格 | 3,980 万円 |
|---|---|---|---|
| 接道状況 | 北東側 公道6m 間口約12.8m | ||
| 交通 |
近鉄けいはんな線 学研奈良登美ヶ丘駅 バス8分乗車 バス停光台六丁目西 まで 徒歩6分 近鉄京都線 新祝園駅 バス20分乗車 バス停光台六丁目西 まで 徒歩2分 JR学研都市線(片町線) 祝園駅 バス停光台六丁目西 まで 徒歩2分 |
土地権利 | 所有権 |
| 小学校区 | 東光 ( 550m ) | 中学校区 | 精華西 ( 850m ) |
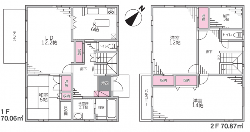
| 間取り | 3LDK | 築年数 | 2003年(平成15)3月 |
| 土地面積 | 公簿 287.13㎡(86.85坪) | 建物面積 | 140.93㎡ (42.63坪) |
| 地目 | 宅地 | 私道負担 | なし |
| 都市計画 | 市街化区域 | 用途地域 | 1種低層 |
| 建ぺい率 | 40% | 容積率 | 60% |
| 上水道 | 公共 | 下水道 | 公共 |
| ガス | 都市ガス | 現況 | 空 |
| 構造 | 軽量鉄骨造 | 駐車場 | 有 3台 |
| 取引態様 | 仲介 | 明渡 | 相談 |
| 設備・条件 | システムキッチン、オール電化、浴室乾燥機、追い焚き、複層ガラス、モニタ付インターホン、駐車場2台分、駐車場3台分、床下収納、トイレ2箇所、庭、カーポート、納戸 | ||
| 備考 |
■リフォーム歴 2017年12月:外壁塗装 2017年01月:エコキュート交換 2025年6月:クロス新調、ふすま貼替、畳表替え、トイレ新品交換、シリンダー交換 ■住宅瑕疵保険付き |
||
弊社では、売主様に配慮し、物件所在地を掲載していない物件がございます。
詳細については、お気軽にお問合せください。
(物件番号: 3009757)
【更新年月日】2026年04月20日
【次回更新日】2026年05月20日
