橿原市城殿町
3,180万円
☆近鉄橿原線「畝傍御陵前」駅徒歩5分
☆駐車2台可(車種による)
☆長期優良住宅認定通知書あり
☆住宅性能評価書の設計・建設をダブル取得
☆オール電化住宅
☆BELS評価取得
─────────────────────
◇◆ ライフインフォメーション ◆◇
【スーパー】オークワ橿原畝傍店/徒歩約7分(約500m)
【スーパー】イズミヤ橿原神宮前店/徒歩約13分(約950m)
【コンビニ】セブンイレブン橿原御坊町店/徒歩約6分(約400m)
【ドラッグストア】クスリのアオキ藤原京店/徒歩約13分(約900m)
【病院】大和橿原病院/徒歩約18分(約1300m)
【幼稚園・保育園】あおば保育園/徒歩約3分(約210m)
【公園】城殿井戸跡公園/徒歩約8分(約550m)
(周辺施設の距離に関しては地図アプリを基に調査をしたものであり、実際にかかる時間と誤差がある場合があります。)
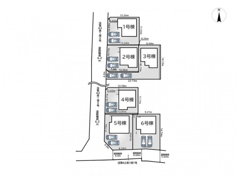
物件概要
| 所在地 | 橿原市城殿町 | 価格 | 3,180 万円 |
|---|---|---|---|
| 接道状況 | 西側 公道6.2m 有 | ||
| 交通 |
近鉄橿原線 畝傍御陵前駅 まで 徒歩5分 近鉄橿原線 橿原神宮前駅 まで 徒歩18分 |
土地権利 | 所有権 |
| 小学校区 | 畝傍北 ( 400m ) | 中学校区 | 畝傍 ( 1700m ) |
| 間取り | 3SLDK | 築年数 | 2026年(令和8)7月 |
| 土地面積 | 公簿 171.11㎡(51.76坪) | 建物面積 | 100.44㎡ (30.38坪) |
| 地目 | 宅地 | 私道負担 | なし |
| 都市計画 | 市街化区域 | 用途地域 | 1種住居 |
| 建ぺい率 | 60% | 容積率 | 200% |
| 上水道 | 公共 | 下水道 | 公共 |
| ガス | 現況 | 建築中 | |
| 構造 | 木造 在来軸組工法 | 駐車場 | 有 2台 |
| 取引態様 | 仲介 | 明渡 | 予定 2026年8月 中旬 |
| 建築確認番号 | 第R07HC123735号 | ||
| 設備・条件 | カウンターキッチン、オール電化、シャンプードレッサー、洗浄便座、浴室乾燥機、モニタ付インターホン、駐車場2台分、床下収納、トイレ2箇所、電気、ファミリークローゼット、ランドリールーム、ストレージルーム、人感センサー、浄水器 | ||
| 備考 | ■網戸・照明・カーテン・カーテンレールはオプション有料となります。 | ||
弊社では、売主様に配慮し、物件所在地を掲載していない物件がございます。
詳細については、お気軽にお問合せください。
(物件番号: 3013696)
【更新年月日】2026年04月13日
【次回更新日】2026年05月13日
【取引条件の有効期限】2026年04月20日
