葛城市東室
1,998万円
《 建築条件なし 》
☆敷地広々68坪の更地
☆近鉄新庄駅徒歩13分
☆2沿線利用可
☆間口広々16m!
─────────────────────
◇◆ ライフインフォメーション ◆◇
【スーパー】生鮮&業務スーパーボトルワールドOK新庄高田店/徒歩約9分(約650m)
【スーパー】マルシゲ大和新庄店/徒歩約11分(約800m)
【コンビニ】セブンイレブン葛城西室店/徒歩約6分(約450m)
【ドラッグストア】ココカラファイン新庄店/徒歩約9分(約700m)
【病院】大和高田市立病院/徒歩約30分(約2200m)
【幼稚園・保育園】奈良文化幼稚園/徒歩約11分(約800m)
【公園】西室公園/徒歩約7分(約500m)
(周辺施設の距離に関しては地図アプリを基に調査をしたものであり、実際にかかる時間と誤差がある場合があります。)
物件概要
| 所在地 | 葛城市東室 | 価格 | 1,998 万円 |
|---|---|---|---|
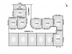
| 接道状況 | 南側 公道6m 間口約16m | ||
| 交通 |
近鉄御所線 近鉄新庄駅 まで 徒歩13分 JR和歌山線 大和新庄駅 まで 徒歩16分 |
土地面積 | 公簿 227.28㎡(68.75坪) |
| 小学校区 | 新庄 ( 1300m ) | 中学校区 | 新庄 ( 2100m ) |
| セットバック | 無し | 私道負担 | |
| 土地権利 | 所有権 | 建築条件 | なし |
| 地目 | 宅地 | 都市計画 | 市街化区域 |
| 用途地域 | 定無 | 用途地域2 | |
| 建ぺい率 | 60% | 容積率 | 200% |
| 上水道 | 公共 | 下水道 | 公共 |
| ガス | 都市ガス | 現況 | 更地 |
| 取引態様 | 仲介 | 明渡 | 相談 |
| 設備・条件 | |||
| 備考 | ■水道分担金:217,800円要 | ||
弊社では、売主様に配慮し、物件所在地を掲載していない物件がございます。
詳細については、お気軽にお問合せください。
(物件番号: 1009800)
【更新年月日】2026年04月17日
【次回更新日】2026年05月17日
【取引条件の有効期限】2026年04月24日
